1715 Treffry Place, Summerland
MLS® 10372525
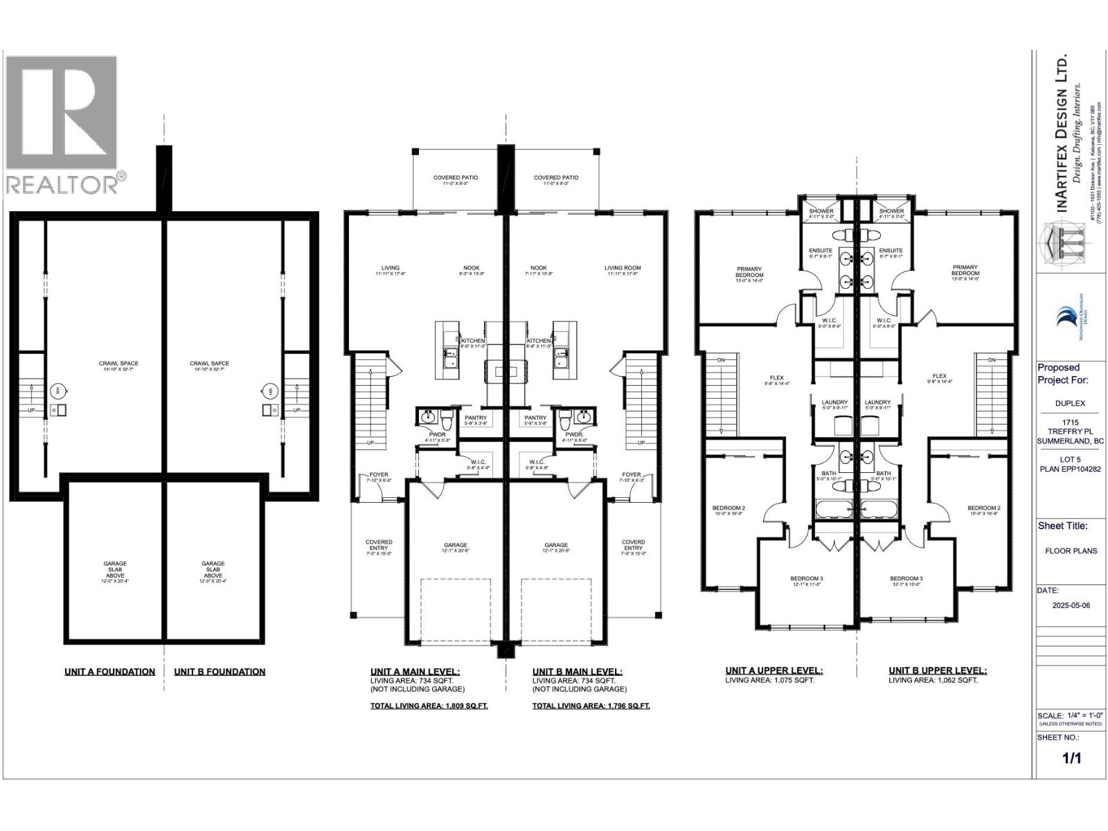
This brand-new 3-bedroom half duplex in the desirable Trout Creek area of Summerland, BC, offers the perfect blend of modern living and convenience. Ideal for new homeowners or downsizers, this low-maintenance home features a spacious layout, high-quality finishes, and a single-car garage that's roughed in for EV charging. This ENERGY-EFFICIENT STEP 4 home features including an electric furnace, electric hot water heater, and heat pump/AC unit, this home is designed for comfort and sustainability. Enjoy the beauty of quartz countertops, vinyl plank flooring, and a custom tile shower in the ensuite, while the full soundproofing with Sonopan sound boards on each side between units ensures peace and privacy. Located just a 10-minute walk to the beach and a 5-minute walk to Trout Creek Public Elementary School, this home is ideally positioned for easy access to Summerland’s parks, trails, and outdoor activities. With Penticton just a short 10-minute drive away and 9 wineries within a 7-minute drive, there’s always something to explore. The private, fully landscaped and fenced backyard, with drip irrigation, is perfect for relaxing or entertaining. Additional highlights include a 4-foot crawl space for storage, central vac rough-in, and freehold with no condo fees. Don’t miss out on this incredible opportunity—schedule a showing today! price + gst. Estimation completion is spring. (id:28299)Property Details
- Full Address:
- 1715 Treffry Place, Summerland, British Columbia
- Price:
- $ 749,900
- MLS Number:
- 10372525
- List Date:
- January 15th, 2026
- Neighbourhood:
- Trout Creek
- Lot Size:
- 0.12 ac
- Year Built:
- 2026
Interior Features
- Bedrooms:
- 3
- Bathrooms:
- 3
- Air Conditioning:
- Central air conditioning
- Heating:
- Forced air
Building Features
- Storeys:
- 2
- Sewer:
- Municipal sewage system
- Water:
- Municipal water
- Roof:
- Asphalt shingle, Unknown
- Garage:
- Attached Garage
- Garage Spaces:
- 2
- Ownership Type:
- Freehold
Floors
- Finished Area:
- 1835 sq.ft.
- Rooms:
Land
- Lot Size:
- 0.12 ac
Neighbourhood Features
Ratings
Commercial Info
Agent: Nicole McGillis
Location

